【貸倉庫・作業所】大阪府豊中市庄内宝町
所在地 大阪府豊中市庄内宝町
賃料 1,100,000円
共益費 -
保証金 6ヶ月
解約引 2ヶ月
築年月 平成16年3月
駐車スペース 有り(北側)
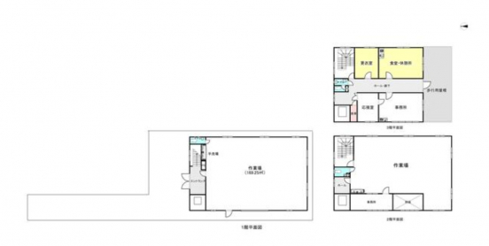
建物面積 ▼延床面積:約159.15坪
1階:約58.73坪
2階:約54.65坪
3階:約45.77坪
土地面積 約99.10坪
用途地域 準工業地域
入居日 相談
仲介手数料 賃料1ヶ月分+10%
オレンジホームからのコメント
◇「豊中南IC」まで約3分◇
■1階天井高:5.9m/ 2階最高天井高:5m/3階最高天井高:3.6m
■1階シャッター:4m×4m
■電気・水道・トイレ・洗面所・ミニキッチン(IHコンロ)有り
■エレベーター設置スペース有り(エレベーターは未設置)
■エアコン・電動シャッター・クレーン・キュービクル有り(性能保証無し)
■保証会社・火災保険加入要
| 所在地 | 大阪府豊中市庄内宝町 | ||
|---|---|---|---|
| 賃料 | 1,100,000円 | 共益費 | - |
| 保証金 | 6ヶ月 | 解約引 | 2ヶ月 |
| 築年月 | 平成16年3月 | 駐車スペース | 有り(北側) |
| 建物面積 | ▼延床面積:約159.15坪 1階:約58.73坪 2階:約54.65坪 3階:約45.77坪
| ||
| 土地面積 | 約99.10坪
| ||
| 用途地域 | 準工業地域 | ||
| 入居日 | 相談 | ||
| 仲介手数料 | 賃料1ヶ月分+10% | ||
オレンジホームからのコメント
◇「豊中南IC」まで約3分◇
■1階天井高:5.9m/ 2階最高天井高:5m/3階最高天井高:3.6m
■1階シャッター:4m×4m
■電気・水道・トイレ・洗面所・ミニキッチン(IHコンロ)有り
■エレベーター設置スペース有り(エレベーターは未設置)
■エアコン・電動シャッター・クレーン・キュービクル有り(性能保証無し)
■保証会社・火災保険加入要
Contact お問い合わせ
大阪北部、京都南部、兵庫南部エリアにある貸倉庫・貸工場・貸土地の物件情報、売買や土地活用に関するご相談などは、お気軽にご連絡ください。
-
【営業時間】10:00~18:00
【定休日】水曜日・日曜日・祝日

















