【貸工場・事務所】兵庫県神戸市長田区梅ケ香町
所在地 兵庫県神戸市長田区梅ケ香町
交通 神戸市営地下鉄線「苅藻」駅 徒歩10分
賃料 1,650,000円
共益費 -
敷金 3ヶ月
礼金 2ヶ月
築年月 昭和48年2月新築
昭和58年5月増築
駐車スペース 有り
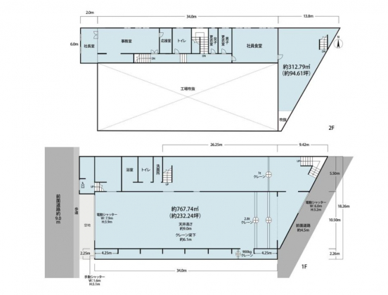
建物面積 ▼延床面積:約326.86坪
1階:約232.24坪
2階:約94.62坪
土地面積 約284.86坪
用途地域 工業地域
入居日 即日
仲介手数料 賃料1ヶ月分+10%
オレンジホームからのコメント
■現状有姿
■クレーン2.8t×2基、1t×1基
■900㎏×1基
■2階1基有り
■設備の維持メンテナンスは借主負担
■業種相談
| 所在地 | 兵庫県神戸市長田区梅ケ香町 | ||
|---|---|---|---|
| 交通 | 神戸市営地下鉄線「苅藻」駅 徒歩10分 | ||
| 賃料 | 1,650,000円 | 共益費 | - |
| 敷金 | 3ヶ月 | 礼金 | 2ヶ月 |
| 築年月 | 昭和48年2月新築 昭和58年5月増築 | 駐車スペース | 有り |
| 建物面積 | ▼延床面積:約326.86坪 1階:約232.24坪 2階:約94.62坪 | ||
| 土地面積 | 約284.86坪 | ||
| 用途地域 | 工業地域 | ||
| 入居日 | 即日 | ||
| 仲介手数料 | 賃料1ヶ月分+10% | ||
オレンジホームからのコメント
■現状有姿
■クレーン2.8t×2基、1t×1基
■900㎏×1基
■2階1基有り
■設備の維持メンテナンスは借主負担
■業種相談
Contact お問い合わせ
大阪北部、京都南部、兵庫南部エリアにある貸倉庫・貸工場・貸土地の物件情報、売買や土地活用に関するご相談などは、お気軽にご連絡ください。
-
【営業時間】10:00~18:00
【定休日】水曜日・日曜日・祝日




















