【貸倉庫】大阪府摂津市東別府
所在地 大阪府摂津市東別府
交通 大阪モノレール「南摂津」駅 徒歩21分
賃料 3,850,000円
共益費 -
敷金 6ヶ月
礼金 2ヶ月
築年月 昭和62年1月
駐車スペース 有り
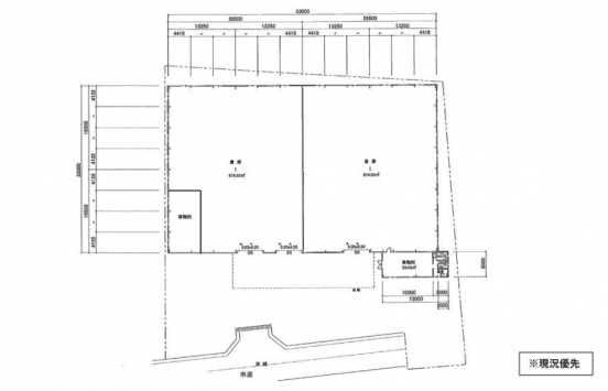
建物面積 ▼延床面積:約548.74坪
倉庫:約529.07坪
事務所:約19.66坪
土地面積 約919.43坪
用途地域 第一種住居地域
入居日 令和8年6月
仲介手数料 賃料1ヶ月分+10%
オレンジホームからのコメント
✨摂津市内!平屋建倉庫の募集出ました!✨
◎近畿道アクセス良好◎
◇駐車場有り◇
◇軒高:9m◇
| 所在地 | 大阪府摂津市東別府 | ||
|---|---|---|---|
| 交通 | 大阪モノレール「南摂津」駅 徒歩21分 | ||
| 賃料 | 3,850,000円 | 共益費 | - |
| 敷金 | 6ヶ月 | 礼金 | 2ヶ月 |
| 築年月 | 昭和62年1月 | 駐車スペース | 有り |
| 建物面積 | ▼延床面積:約548.74坪 倉庫:約529.07坪 事務所:約19.66坪 | ||
| 土地面積 | 約919.43坪 | ||
| 用途地域 | 第一種住居地域 | ||
| 入居日 | 令和8年6月 | ||
| 仲介手数料 | 賃料1ヶ月分+10% | ||
オレンジホームからのコメント
✨摂津市内!平屋建倉庫の募集出ました!✨
◎近畿道アクセス良好◎
◇駐車場有り◇
◇軒高:9m◇
Contact お問い合わせ
大阪北部、京都南部、兵庫南部エリアにある貸倉庫・貸工場・貸土地の物件情報、売買や土地活用に関するご相談などは、お気軽にご連絡ください。
-
【営業時間】10:00~18:00
【定休日】水曜日・日曜日・祝日




















