【貸倉庫事務所】兵庫県神戸市兵庫区和田宮通
所在地 兵庫県神戸市兵庫区和田宮通
交通 神戸市営地下鉄海岸線「和田岬」駅 徒歩約4分
賃料 2,090,000円
共益費 -
保証金 19,000,000円
解約引 6,270,000円
築年月 令和6年4月
駐車スペース 有り
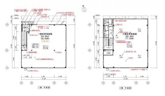
建物面積 ▼延床面積:約145.29坪
1階:約68.05坪
2階:約77.24坪
土地面積 約139.11坪
用途地域 準工業地域
入居日 令和8年5月上旬
仲介手数料 賃料1ヶ月分+10%
オレンジホームからのコメント
■前面道路幅員:約8m
■電気・上水道・給湯・トイレ・エアコン有り
■1階:フォークリフト用電源・電動シャッター有り
■火災保険加入要
| 所在地 | 兵庫県神戸市兵庫区和田宮通 | ||
|---|---|---|---|
| 交通 | 神戸市営地下鉄海岸線「和田岬」駅 徒歩約4分 | ||
| 賃料 | 2,090,000円 | 共益費 | - |
| 保証金 | 19,000,000円 | 解約引 | 6,270,000円 |
| 築年月 | 令和6年4月 | 駐車スペース | 有り |
| 建物面積 | ▼延床面積:約145.29坪 1階:約68.05坪 2階:約77.24坪 | ||
| 土地面積 | 約139.11坪 | ||
| 用途地域 | 準工業地域 | ||
| 入居日 | 令和8年5月上旬 | ||
| 仲介手数料 | 賃料1ヶ月分+10% | ||
オレンジホームからのコメント
■前面道路幅員:約8m
■電気・上水道・給湯・トイレ・エアコン有り
■1階:フォークリフト用電源・電動シャッター有り
■火災保険加入要
Contact お問い合わせ
大阪北部、京都南部、兵庫南部エリアにある貸倉庫・貸工場・貸土地の物件情報、売買や土地活用に関するご相談などは、お気軽にご連絡ください。
-
【営業時間】10:00~18:00
【定休日】水曜日・日曜日・祝日

















