【貸倉庫・事務所】兵庫県西宮市深津町
所在地 兵庫県西宮市深津町
賃料 A室:1,969,000円
B室:2,101,000円
共益費 -
保証金 A室:1,790万円
B室:1,910万円
解約引 A室:590.7万円
B室:630.3万円
築年月 平成29年3月
駐車スペース 有り
建物面積 備考参照
用途地域 準工業地域
入居日 相談(2026年4月)
仲介手数料 賃料1ヶ月分+10%
オレンジホームからのコメント
◇こちらはA室・B室の募集になります◇
前面スペースに駐車可能◎営業所にピッタリな物件です★☆
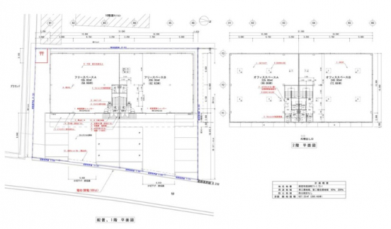
▼建物延床面積
【A室】1階:約58.98坪 / 2階:約68.06坪 延床計:127.05坪
【B室】1階:約62.92坪 / 2階:約72.60坪 延床計:135.52坪
■1階設備:フォークリフト用電源、電動シャッター有り
2階設備:個別空調、男女別トイレ、OAフロア
■指定の火災保険加入要
■入居に伴う改装工事は指定業者工事とさせていただきます。
| 所在地 | 兵庫県西宮市深津町 | ||
|---|---|---|---|
| 賃料 | A室:1,969,000円 B室:2,101,000円 | 共益費 | - |
| 保証金 | A室:1,790万円 B室:1,910万円 | 解約引 | A室:590.7万円 B室:630.3万円 |
| 築年月 | 平成29年3月 | 駐車スペース | 有り |
| 建物面積 | 備考参照 | ||
| 用途地域 | 準工業地域 | ||
| 入居日 | 相談(2026年4月) | ||
| 仲介手数料 | 賃料1ヶ月分+10% | ||
オレンジホームからのコメント
◇こちらはA室・B室の募集になります◇
前面スペースに駐車可能◎営業所にピッタリな物件です★☆
▼建物延床面積
【A室】1階:約58.98坪 / 2階:約68.06坪 延床計:127.05坪
【B室】1階:約62.92坪 / 2階:約72.60坪 延床計:135.52坪
■1階設備:フォークリフト用電源、電動シャッター有り
2階設備:個別空調、男女別トイレ、OAフロア
■指定の火災保険加入要
■入居に伴う改装工事は指定業者工事とさせていただきます。
Contact お問い合わせ
大阪北部、京都南部、兵庫南部エリアにある貸倉庫・貸工場・貸土地の物件情報、売買や土地活用に関するご相談などは、お気軽にご連絡ください。
-
【営業時間】10:00~18:00
【定休日】水曜日・日曜日・祝日














