【貸倉庫・工場】大阪府東大阪市水走
所在地 大阪府東大阪市水走
賃料 1,650,000円
共益費 -
保証金 4,500,000円
礼金 1,650,000円
築年月 平成1年9月
駐車スペース -
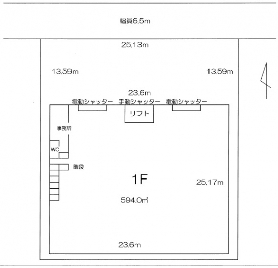
建物面積 ▼延床面積:約359.37坪
1階:約179.68坪
2階:約179.68坪
土地面積 ◇約300坪
用途地域 工業地域
入居日 相談
仲介手数料 賃料1ヶ月分+10%
オレンジホームからのコメント
近畿自動車道・阪神高速道路【東大阪JCT】近くです★
工業地域の大型貸倉庫・工場!ご利用用途等お問い合せお待ちしております(^O^)/
■電気・水道・ガス(プロパン)有り
■1階高さ:約5.5m / 2階高さ:約3.9m
■両サイドのシャッター 高:約4m / 幅:約3.8m
■接道状況【北側】公道幅員:約6.5m 接面:約25.13m
■検査済証無し
所在地 | 大阪府東大阪市水走 | ||
---|---|---|---|
賃料 | 1,650,000円 | 共益費 | - |
保証金 | 4,500,000円 | 礼金 | 1,650,000円 |
築年月 | 平成1年9月 | 駐車スペース | - |
建物面積 | ▼延床面積:約359.37坪 1階:約179.68坪 2階:約179.68坪 | ||
土地面積 | ◇約300坪 | ||
用途地域 | 工業地域 | ||
入居日 | 相談 | ||
仲介手数料 | 賃料1ヶ月分+10% |
オレンジホームからのコメント
近畿自動車道・阪神高速道路【東大阪JCT】近くです★
工業地域の大型貸倉庫・工場!ご利用用途等お問い合せお待ちしております(^O^)/
■電気・水道・ガス(プロパン)有り
■1階高さ:約5.5m / 2階高さ:約3.9m
■両サイドのシャッター 高:約4m / 幅:約3.8m
■接道状況【北側】公道幅員:約6.5m 接面:約25.13m
■検査済証無し
Contact お問い合わせ
大阪北部、京都南部、兵庫南部エリアにある貸倉庫・貸工場・貸土地の物件情報、売買や土地活用に関するご相談などは、お気軽にご連絡ください。
-
【営業時間】10:00~18:00
【定休日】水曜日・日曜日・祝日