【一棟貸ビル】大阪府大阪市東成区深江北
所在地 大阪府大阪市東成区深江北
交通 大阪メトロ中央線「深江橋」駅 徒歩5分
大阪メトロ千日前線「新深江」駅 徒歩15分
賃料 2,420,000円
共益費 -
敷金 6ヶ月
礼金 2ヶ月
築年月 平成4年12月
駐車スペース 5~7台駐車可能
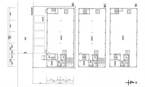
建物面積 ▼延床面積:約398.07坪
1階:約132.69坪
2階:約132.69坪
3階:約132.39坪
土地面積 約221.71坪
用途地域 工業地域
入居日 相談
仲介手数料 賃料1ヶ月分+10%
オレンジホームからのコメント
◇工業地域内◇
◇駐車スペース5台以上◇
■接道状況
南側幅員:約8m/接道:約32.5m
■荷物用リフト(積載荷重750㎏/240㎏)2箇所有り
■各階トイレ・給湯・エアコン有り
■1階天井高:約4.9m
■保証会社加入要
| 所在地 | 大阪府大阪市東成区深江北 | ||
|---|---|---|---|
| 交通 | 大阪メトロ中央線「深江橋」駅 徒歩5分 大阪メトロ千日前線「新深江」駅 徒歩15分 | ||
| 賃料 | 2,420,000円 | 共益費 | - |
| 敷金 | 6ヶ月 | 礼金 | 2ヶ月 |
| 築年月 | 平成4年12月 | 駐車スペース | 5~7台駐車可能 |
| 建物面積 | ▼延床面積:約398.07坪 1階:約132.69坪 2階:約132.69坪 3階:約132.39坪 | ||
| 土地面積 | 約221.71坪 | ||
| 用途地域 | 工業地域 | ||
| 入居日 | 相談 | ||
| 仲介手数料 | 賃料1ヶ月分+10% | ||
オレンジホームからのコメント
◇工業地域内◇
◇駐車スペース5台以上◇
■接道状況
南側幅員:約8m/接道:約32.5m
■荷物用リフト(積載荷重750㎏/240㎏)2箇所有り
■各階トイレ・給湯・エアコン有り
■1階天井高:約4.9m
■保証会社加入要
Contact お問い合わせ
大阪北部、京都南部、兵庫南部エリアにある貸倉庫・貸工場・貸土地の物件情報、売買や土地活用に関するご相談などは、お気軽にご連絡ください。
-
【営業時間】10:00~18:00
【定休日】水曜日・日曜日・祝日




















